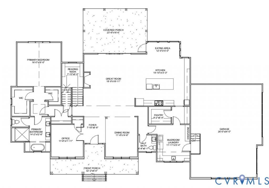
Hard to find, new to be built opportunity with Hamlin Homes! Build your plan or ours! Set on a private homesite in Beaverdam, 15561 Toread Didd Lane is presented as a modern farmhouse design offering 3,712 finished square feet, including 2,509 square feet on the first floor and 1,203 square feet on the second floor, plus an 891-square-foot side-load garage. NO HOA! The layout is intentional and highly livable, anchored by 10-foot ceilings on the main level and 9-foot ceilings upstairs, creating an elevated, open feel throughout. The first floor features a spacious great room, formal dining room with custom wainscoting, private office, and a well-appointed kitchen with 42-inch cabinetry, quartz countertops, tile backsplash, farm sink, gas cooktop with chimney vent, and both a walk-in pantry and separate butler's pantry with prep sink. The primary suite is privately located on the main level with dual walk-in closets and a spa-style bath featuring a freestanding tub, ceramic shower with frameless black door, rain head, and dual shower heads. Upstairs offers three additional bedrooms, a Jack and Jill bath, a hall bath, and an oversized playroom, providing flexibility for guests, media, or recreation. Exterior finishes include Hardie Plank siding, white brick accents, black windows, a standing seam metal roof over the front porch, stamped concrete porches, and a vaulted screen porch designed for year-round enjoyment. Infrastructure upgrades such as a conditioned crawlspace, tankless water heater, 400-amp service, and a 22KW whole-house generator reflect a build focused on long-term quality. Perfect opportunity for any buyers seeking privacy, scale, and custom-level execution in a setting that feels genuinely set apart. Schedule a meeting today! Lot has been cleared but plans can be changed to suit your needs!!
Listed By
Agency Name: Hometown Realty
Shown By
Agent Name: Jim Dunn
Agent Phone: (804) 864-0323
Agency Title: Joyner Fine Properties
Estimated Payment
$ 7,488.67 per month $7,053.88 Principal & Interest $27.92 Property Tax $406.88 Homeowner's Insurance
15561 Toread Didd Lane | MLS# 2604411
This single family home located at 15561 Toread Didd Lane, Beaverdam, VA 23015 is currently listed for sale with an asking price of $1,395,000. This property was built in 2026 and has 4 bedrooms and 3 full and 1 partial baths with 3712 sq. ft. Search Beaverdam real estate on www.jimdunnhomes.com today.